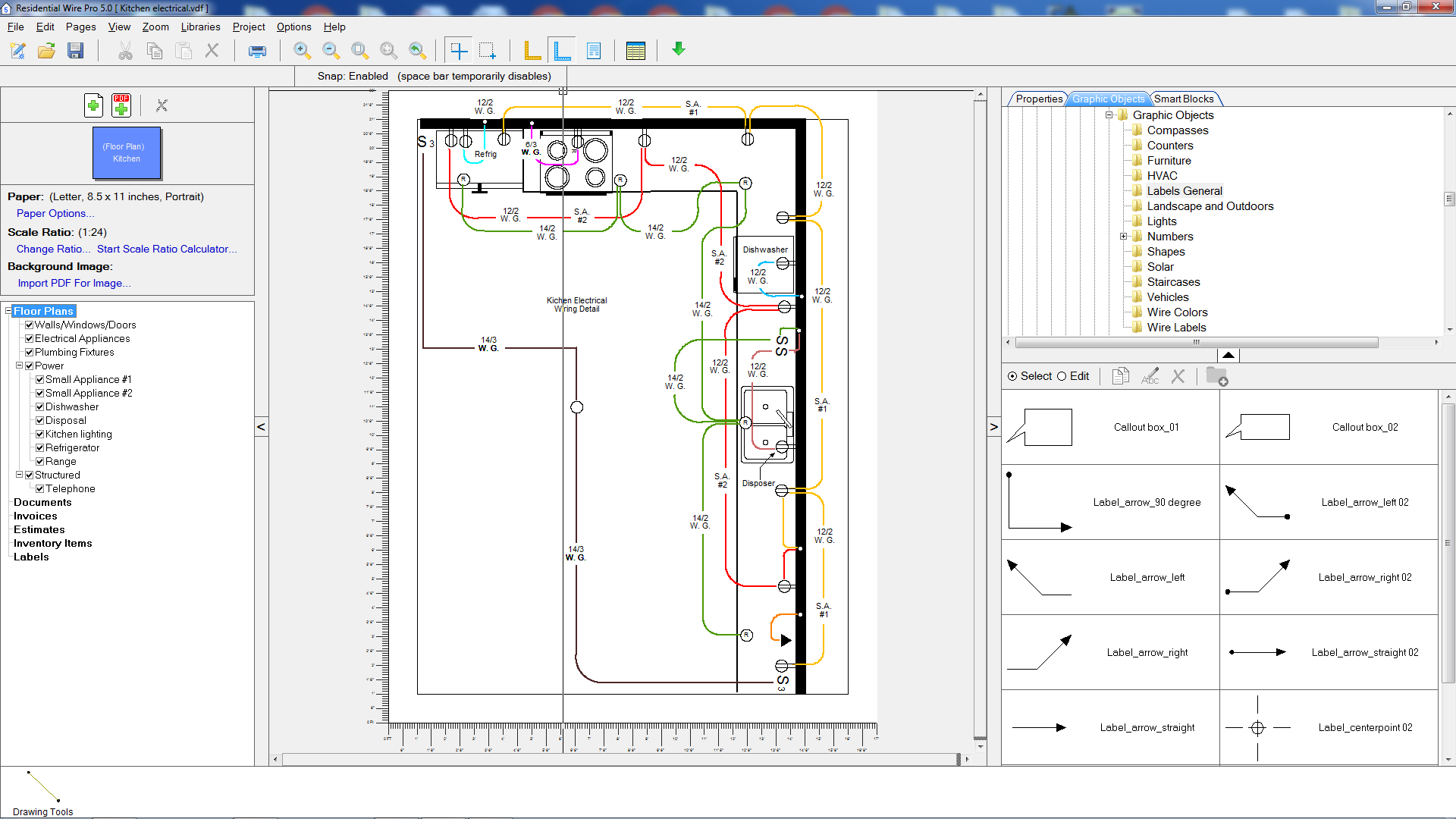
Image of the Constructor 16 in the EDIT mode. Active help is shown also. Image of the Constructor 16 in the RUN or simulation mode. Screen also shows an open Workbook. Image of the Constructor 16 with a PLC I/O module and an open symbol library. Image of the Constructor 16 with a timer delay option screen. Image of the Constructor 16 with wire generator screen open. Image of a Constructor 16 wire label preview screen. Image of the Constructor 16 with a PDF export screen. Image of the Constructor 16 - Screen Zoomed, Library also Zoomed Image of the Constructor 16 - Troubleshooting mode, probe shows power (Red Indicator) at the connection points. Image of the Constructor 16 - Troubleshooting mode, showing possible locations (Green squares) for the green probe placement. Image of the Constructor 16 - Viewing troubleshooting diagram, defective symbol list and troubleshooting log. Image of the Constructor 16 - Troubleshooting fuse with probe in continuity mode. Fuse is open, no light or sound from the test probe. Main drawing screen with a sample floor plan. Also shows inventory item assigned to a paddle fan symbol. Detailed kitchen wiring is shown. Also shown are some graphic objects that may be placed in the diagram. Shows a sample take-off document that can be generated and the various options available. Sample diagram with a smart blocked being edited. Image showing an imported PDF Floor Plan and adding receptacle symbols to it. Image from the Inventory Manager. Add items and prices to your inventory database. Shows inventory assigned to each symbol in a project. Inventory can also be assigned to just the project. Additional Inventory Assigned to a project. Examples might be permits, breakers, meter base, etc. Imported PDF added symbols,wires and legend. Then exported as pdf. Shows the Print Layout screen where you can adjust how your diagram is going to print. You can adjust scale, margins, location and more. Outdoor lighting diagram with various graphic objects. Simple solar diagram. Mainly drawn with graphic objects. Shows a sample Bill of Materials screen which shows all the materials (optionally labor can be shown) used in a project.